Våre prosjekter
Hagejordet - Søre Ål
Boligvelger
Boligtyper
Kvaliteter
Galleri
Nyheter
Dokumenter
Deleie
Kontakt megler
F102
Meld interesse
Gi bud
Status
Solgt
Bolig
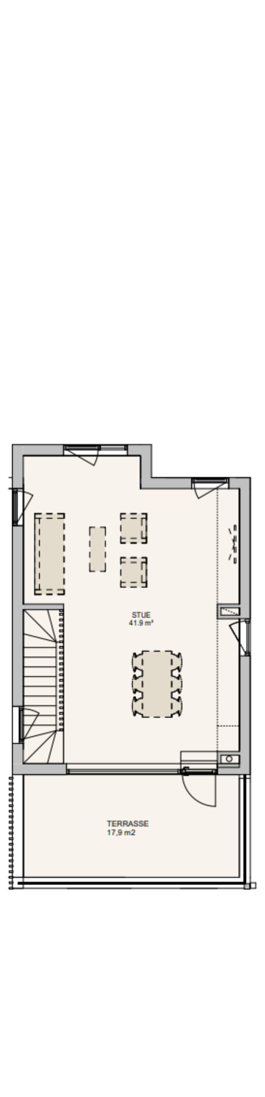
F102
Pris
Soverom
4
BRA kvm.
178
BRA-i kvm.
175
Type
Rekkehus
Etasjer
3.
Carport
1
Uteareal m²
17 + 17 + 9 + 14 + 53
Omkostninger
Vedlegg
F102
Meld interesse
Fyll inn navn
Fyll inn telefonnummer
Fyll inn e-post
Romløsning
2-roms
3-roms
4-roms
Kommentar
Jeg ønsker å bli kontaktet i samtykke med denne
personvernerklæringen
Send
Powered by Plyo
Tilbake til Bygg F